您当前的位置: 首页 > 政务公开 > 公告公示
长乐数智产业园项目批前公示
来源:长乐区自然资源和规划局 2026-04-22 17:36 浏览量:

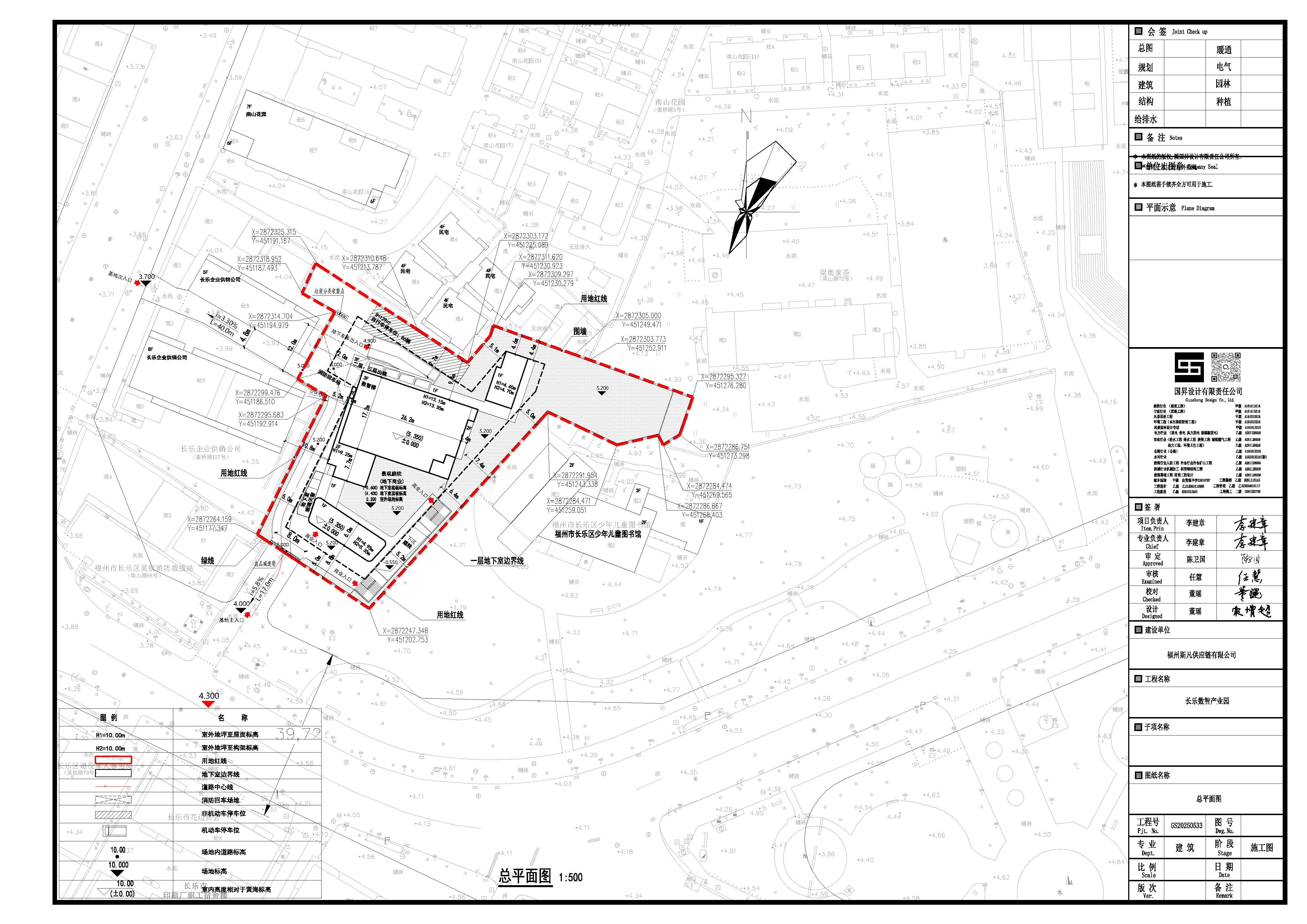
  长乐数智产业园项目位于吴航街道鳌山路北侧、奎桥路东侧,建设单位为福州斯凡供应链有限公司。总用地面积3177平方米(计4.77亩),容积率>1.0,≤1.5、建筑密度≤35%、绿地率≤35%。现建设单位向我局申请建设工程规划许可证。根据《自然资源部关于加强和规范规划实施监督管理工作的通知》(自然资发〔2023〕237号)规定,现进行批前公示,征求利害关系人意见,公示时间为2026年4月23日至2026年5月2日。

  根据《福建省行政执法条例》规定,利害关系人有进行陈述、申辩的权利,可在公示期限内向我局提出书面陈述、申辩意见,逾期不提出,视为放弃权利。联系电话:0591-28922576;地址:福州市长乐区文武砂街道文松路666号3号楼长乐区自然资源和规划局。

  附注:

  1.附图仅为示意图,以最后审批为准。

  2.书面反馈意见(申请)发表时间或邮戳日不应超过公示期的最后一天24:00,逾期视为无效意见(申请)。

  3.书面意见(申请)应注明真实联系人姓名、联系电话、联系地址。

  附图:长乐数智产业园项目总平面图

  福州市长乐区自然资源和规划局

2026年4月22日

附件下载

扫一扫在手机上查看当前页面